graphic design
interior/furniture
contact
about
cv
graphic design
interior/furniture
contact
about
cv
Celine Everson

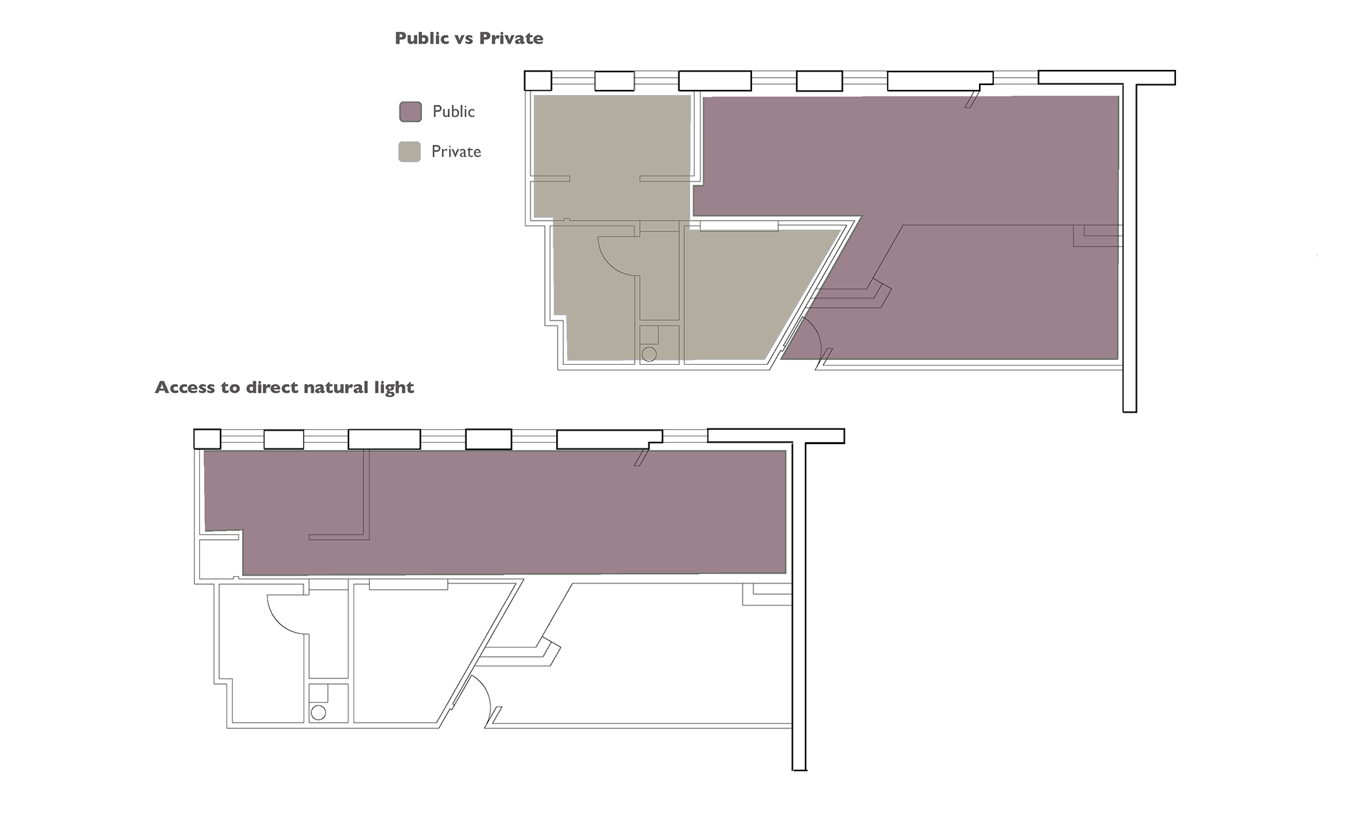
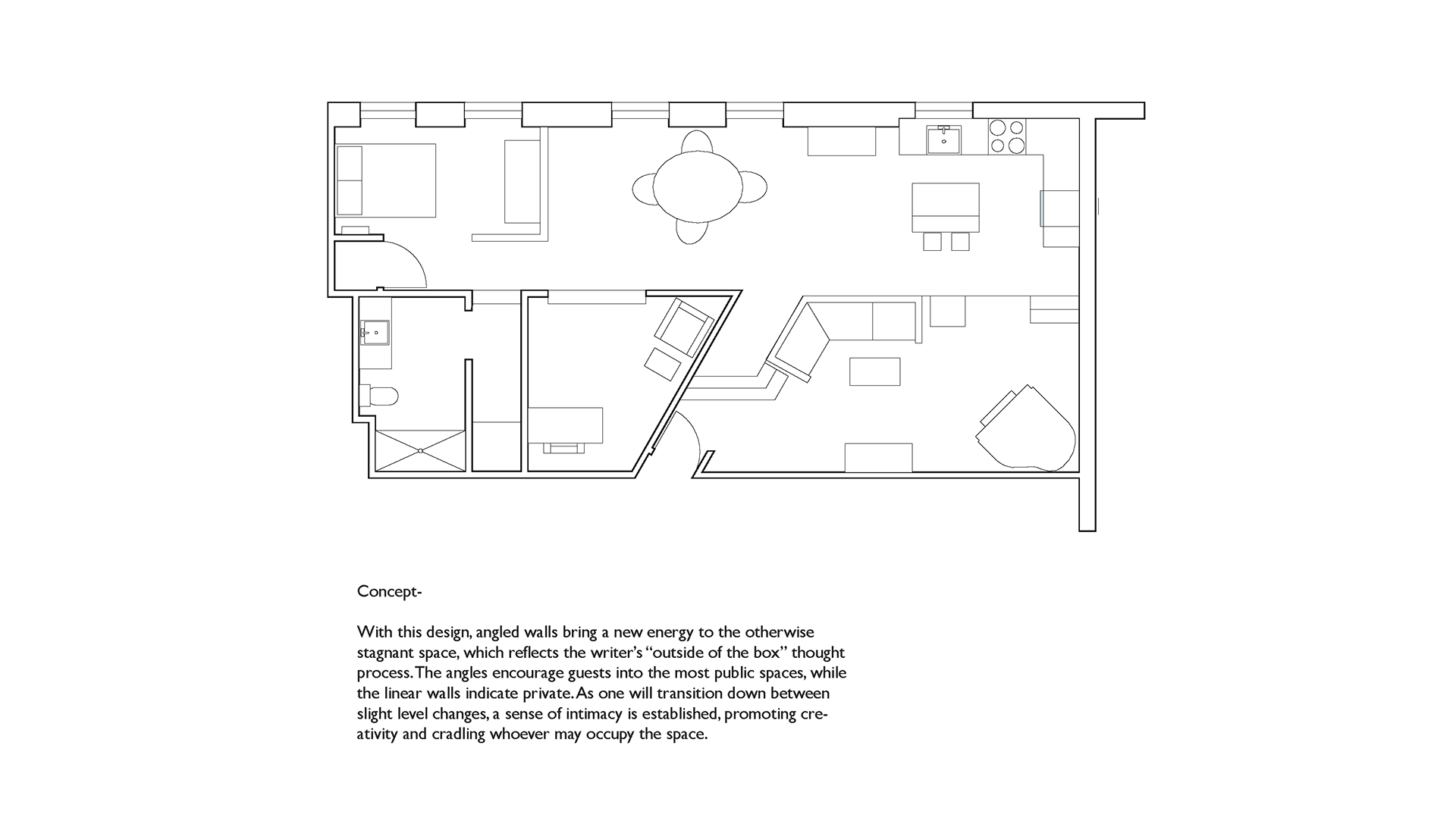
Writer's Loft

You may also like

Cutting Board
2017
Coffee Table
2018
↑Back to Top
Powered by Adobe Portfolio